Petit Chalet Robin
Self Catered
- Sleeps a maximum of
- 6 Guests
- Apartment has
- 3 Bedrooms
- Apartment has
- 2 Bathrooms
- Apartment has
- 1 Hot Tub
- Central Location
- Jacuzzi on Balcony
- 3 Story Townhouse
- Semi Detached Property
Stunning 3 bedroom townhouse, ideal for families only 5 minutes walk from the centre of town. Great position with Hot Tub and mountain views in both summer and winter due to it's large balcony and south facing aspect.
LOCATION/POSITION
Petit Chalet Robin is a semi detached chalet that is approx. 5 minutes walk from Rue du Bourg and is minutes from the free ski shuttle bus. There is off-road parking right outside the front door and sliding glass doors that lead onto south-facing balconies with stunning mountain views and outdoor hot tub.
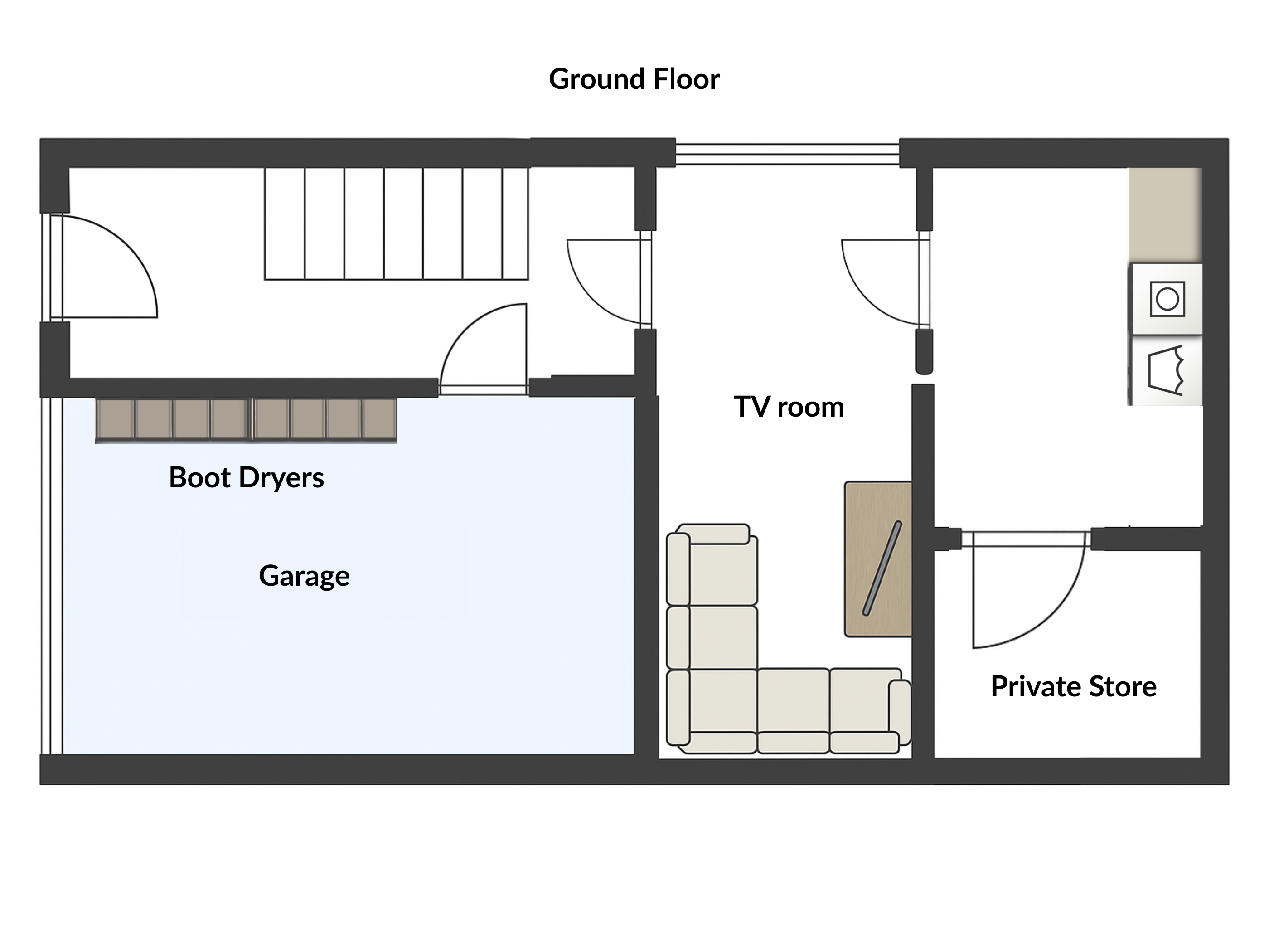
LAYOUT (90 metres sq.)
Built over three levels, this semi detached chalet sleeps 6 people very comfortably in 3 bedrooms, with 2.5 bathrooms. It is on 3 levels and has a stylish open plan living space with full height slate wall, glass balustraded staircase and x-large south facing balcony with mountain views with a perfectly positioned private Jacuzzi.
The ground floor entrance level has a large garage for bike storage, heated boot warmers and ski storage, plus a utility room with and a drying area and washing machine and tumble dryer. There is also a TV snug on the ground floor, great for kids, with bean bags, huge Flat Screen TV, Xbox and Netflix.
The lounge features an eco friendly wood pellet stove, Bose Speaker and large flatscreen TV with UK and French TV channels, and Free WiFi. The modern kitchen is well equipped with a Nespresso Machine, dishwasher, integrated fridge freezer, oven with induction hob, kettle, and toaster. There is a large south facing balcony off the lounge with a table for outdoor dining, Weber BBQ in summer and outdoor hot tub.
There are 3 bedrooms, the two largest being on the top floor. The master suite is spacious and has a well designed jack and jill style bathroom with seperate WC, Duravit bath with oversized rain shower and designer sink unit.
The second bedroom is also a good size and features a south facing balcony with stunning views of the Nyon and Pleney mountains. Again ensuite with a wet room style walk in rain shower with Duravit fixtures and fittings. The additional bunk room is larger than average on the middle floor and has access to a seperate WC and sink and also has use of the master jack & jill bathroom upstairs.
BEDROOMS
Bedroom 1 : Beds : Double / Twin Configuration Possible
Ensuite Shower Room
Bedroom 2 : Beds : Double / Twin Configuration Possible
Shared Family Bathroom with bath and overhead shower
Bedroom 3 : Bunk Bed Configuration : 2 x Adult Singles (No Window)
Seperate WC and Sink - Additional use of Shared Family Bathroom with Bedroom 2
Beds can be configured as a twin or king sized double with no gaps (we use luxury double mattress pad toppers and beds link together).
All Linen is Provided : Egyptian Cotton.
Towels Provided : Egyptian Cotton.
PRACTICALITIES
Boot dryers
Outdoor Hot tub
Fireplace
Bike storage in a lockable garage
BBQ for summer use only
Features
Winter Prices
Winter Self Catered Properties - What's Included Click Here
Apartment Prices : Self Catered Prices are per Property Per Week. The maximum capacity is as stated.
Check In/Check Out : Check In at 4pm on arrival and Check Out is at 10am the following weekend.
To Book : We require a deposit of 35% of the total reservation to secure your reservation. This is non refundable.
Final Balance Payment : Required 12 weeks before the start of your holiday. All payments for self catered properties are taken in Euros via Credit Card or Visa Debit Card or AMEX.
Self Catering Damage Deposits : We will take details of a valid credit or debit card in resort upon your arrival. Any damages or additional cleaning required during or after your stay will be charged to this credit card. We would hope this will be unnecessary as we rarely need to use this deposit facility as most guests respect our luxury properties. Please refer to our terms of business for further information.
Please see our Booking Information Page refer to our Terms of Business for further information.
You can also refer to our Winter Practical Information Page for information on Airport Transfers, Ski Hire, Lessons and Lifts Passes etc.
Summer Prices
Summer Self Catered Properties - What's Included Click Here
Apartment Prices : Self Catered Prices are per Property Per Week. The maximum capacity is as stated.
Check In/Check Out : Check In at 4pm on arrival and Check Out is at 10am the following weekend.
To Book : We require a deposit of 35% of the total reservation to secure your reservation. This is non refundable.
Final Balance Payment : Required 12 weeks before the start of your holiday. All payments for self catered properties are taken in Euros via Credit Card or Visa Debit Card or AMEX.
Self Catering Damage Deposits : We will take details of a valid credit or debit card in resort upon your arrival. Any damages or additional cleaning required during or after your stay will be charged to this credit card. We would hope this will be unnecessary as we rarely need to use this deposit facility as most guests respect our luxury properties. Please refer to our terms of business for further information.
Please see our Booking Information Page refer to our Terms of Business for further information.
You can also refer to our Summer Practical Information Page for information on the MultiPass, Airport Transfers, Summer Activities and Lift Passes.
Rooms
Bedroom 1
- Bedroom style
- Double Bed or 2 single Beds
- Has Ensuite bathroom
Bedroom 2
- Bedroom style
- Double Bed or 2 single Beds
Bedroom 3
- Bedroom style
- Bunk Bed
Location
Petit Chalet Robin is a short five minute walk from Morzine's rue du Bourg and bus stops for the free ski buses for Ardent, Pleney, and Avoriaz.
Address: 247 Route des Udrezants, Morzine, 74110
View on Google Maps

