Chalet Passerelle
Self Catered
- Sleeps a maximum of
- 12 Guests
- Apartment has
- 5 Bedrooms
- Apartment has
- 5 Bathrooms
- Apartment has
- 1 Hot Tub
- Large Terrace
- South Facing
- <5 minutes walk to Ski Lift
LOCATION/POSITION
South facing with incredible views of Le Pleney, Chalet Passerelle is located close to the footbridge in the centre of Morzine. Less than 5 minutes walk into town and to the Super Morzine cable car.
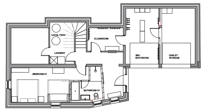
LAYOUT (270 metres sq.)
Chalet Passerelle has an "upside down" layout and is set over three levels, with the main living areas on the top floor making the most of the space, views and natural light.
The top floor of the chalet boasts a bright, open plan living area with vaulted ceilings, exposed beams and central feature log burning fireplace. The XL modular sofa which circles the fireplace is ideal for socialising and relaxing in front of the TV after a hard day on the slopes! Complimented with a newly constructed bar area and sliding bay windows leading out onto a large south facing balcony, you can enjoy magnificent views of Le Pleney.
The kitchen-dining area has a well equipped kitchen with breakfast island and access onto a covered terrace with BBQ in summer and seating for up to 12 people.
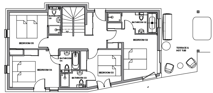
Four of the five bedrooms are located on the first floor of the chalet, as well as the terrace with outdoor hot tub and small garden, perfect for sun bathing.
On the ground floor is the fifth bedroom, a large family suite that sleeps up to four people, with a king/twin bed configuration and good quality double sofa bed. The boot room, with boot warmers, utility room with washer and dryer are also located on this floor.
BEDROOMS
Bedroom 1 : Beds : Double / Twin Configuration Possible
Ensuite Bath and Shower room
Bedroom 2 : Beds : Double / Twin Configuration Possible
Ensuite Shower room
Bedroom 3 : Beds : Double / Twin Configuration Possible
Ensuite Bathroom
Bedroom 4 : Beds : Double / Twin Configuration Possible
Ensuite Shower room
Bedroom 5 : Beds : Double / Twin Configuration Possible with double sofa bed
Ensuite Bath and Shower room
All beds can be configured as a twin or king sized double with no gaps (we use luxury double mattress pad toppers and beds link together).
All Linen is Provided : Egyptian Cotton.
Towels Provided : Egyptian Cotton.
PRACTICALITIES
Features
Winter Prices
Winter Self Catered Properties - What's Included Click Here
Apartment Prices : Self Catered Prices are per Property Per Week. The maximum capacity is as stated.
Check In/Check Out : Check In at 4pm on arrival and Check Out is at 10am the following weekend.
To Book : We require a deposit of 35% of the total reservation to secure your reservation. This is non refundable.
Final Balance Payment : Required 12 weeks before the start of your holiday. All payments for self catered properties are taken in Euros via Credit Card or Visa Debit Card or AMEX.
Self Catering Damage Deposits : We will take details of a valid credit or debit card in resort upon your arrival. Any damages or additional cleaning required during or after your stay will be charged to this credit card. We would hope this will be unnecessary as we rarely need to use this deposit facility as most guests respect our luxury properties. Please refer to our terms of business for further information.
Please see our Booking Information Page refer to our Terms of Business for further information.
You can also refer to our Winter Practical Information Page for information on Airport Transfers, Ski Hire, Lessons and Lifts Passes etc.
Summer Prices
Summer Self Catered Properties - What's Included Click Here
Chalets Prices : Self Catered Prices are per Property Per Week. The maximum capacity is as stated.
Check In/Check Out : Check In at 4pm on arrival and Check Out is at 10am the following weekend.
To Book : We require a deposit of 35% of the total reservation to secure your reservation. This is non refundable.
Final Balance Payment : Required 12 weeks before the start of your holiday. All payments for self catered properties are taken in Euros via Credit Card or Visa Debit Card or AMEX.
Self Catering Damage Deposits : We will take details of a valid credit or debit card in resort upon your arrival. Any damages or additional cleaning required during or after your stay will be charged to this credit card. We would hope this will be unnecessary as we rarely need to use this deposit facility as most guests respect our luxury properties. Please refer to our terms of business for further information.
Please see our Booking Information Page refer to our Terms of Business for further information.
You can also refer to our Summer Practical Information Page for information on the MultiPass, Airport Transfers, Summer Activities and Lift Passes.
Rooms
Bedroom 1
- Bedroom style
- Double Bed or 2 single Beds
- Has Ensuite bathroom




Bedroom 2
- Bedroom style
- Double Bed or 2 single Beds
- Has Ensuite bathroom





Bedroom 3
- Bedroom style
- Double Bed or 2 single Beds
- Has Ensuite bathroom



Bedroom 4
- Bedroom style
- Double Bed or 2 single Beds
- Has Ensuite bathroom




Bedroom 5
- Bedroom style
- Double Bed or 2 single Beds
- Has Ensuite bathroom




Location

Chalet Passerelle is a short walk into the centre of Morzine, located just across the bridge from the Super Morzine Telecabine.
Address: 213 Chemin du Mas Metout, Morzine, 74110
View on Google Maps